\ 建築実例をご覧の方におすすめ /
飯田グループ7社のプラン集と建築費が
ご覧いただけます!

建築費はこちら
CASE.005
災害に強い基礎である
地熱床システムを採用した
こだわりのマイホーム
M様邸(埼玉県)
延床面積:129.80㎡(39.26坪)
敷地面積:322.42㎡(97.53坪)
間取り:4LDK

結婚当初からマイホームを建てたいと考えていたM様ご夫妻。奥様がご自宅で仕事ができるように間取りを自由に設計できる注文住宅を選択されました。
また耐火性・断熱性・遮音性に優れたALC外壁材、災害に強い基礎である地熱床システム、地熱床暖房、無垢フロアなど性能面、設備面でも安心出来るユニバーサルホームの設計思想に共感されたそうです。
打ち合わせ時からこだわった吹き抜けのあるリビングやアイアン手摺付のリビングイン階段、オープンキッチンで広々としていて料理しやすいキッチンなど、担当者とのきめ細かいコミュニケーションの結果、希望予算内で納得のマイホームが完成しました。

家族の趣味と個性を細部にまで表現した居心地の良いLDK
リビング
照明付きの梁、個性溢れるドア、アイアン手摺りなど注文住宅ならではのアイテムをふんだんに取り入れた吹抜のあるリビング。

キッチン
約2.6m幅のオープンキッチンを採用し、統一感のあるカラーコーディネイトが美しい開放感あふれるキッチン。

ダイニング
2面彩光で明るく開放感あふれるダイニング。通風性が高く、熱気も篭らない快適な空間となっている。

センスよくコーディネイトされたこだわりの設備仕様
洋室
奥様の仕事部屋として機能性と快適性を重視した洋室。

書斎
広過ぎず狭過ぎない手の届く範囲で作業が可能な効率的な書斎空間。

リビングイン階段
視覚的な圧迫感が少ないシャープなアイアン手摺りで開放感のあるリビングを実現した階段と吹抜。

バルコニー
南西向きの開放感あふれる横幅10m超のバルコニー。バルコニー壁と天井の内張の配色にもこだわり、美しい統一感を演出。

玄関
扉を設けず入口を広く取る事で出し入れのしやすい大型のシューズインクローク。

エントランス
木目調の美しい玄関ドアと、雨天でも濡れずに出入りできる屋根のあるエントランス。

通風性と明るさをふんだんに取り入れた水廻り設備
洗面・脱衣所
彩光と通風性の高い大型のすべり出し窓を採用した洗面・脱衣所。

浴室
1坪タイプのバスタブを採用し、ゆったりと足を伸ばして寛げる浴室。上部に小窓を設置し、明るさと通風性を確保。

トイレ
ミントグリーンの内装が美しいトイレ。1・2階にそれぞれ設置され忙しい時間帯でも快適に利用できる。

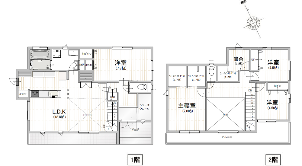
M様邸間取りプラン
延床面積:129.80㎡(39.26坪)
敷地面積:322.42㎡(97.53坪)
間取り:4LDK

この実例に関連する特徴
関連する建築実例
ユニバーサルホーム
2階建て
30~40坪
吹き抜け
パントリー
書斎
シューズクローク
ウォークインクローゼット
\ 建築実例をご覧の方におすすめ!! /
飯田グループ7社のプラン集と建築費が
ご覧いただけます!

こちら





















