\ 建築実例をご覧の方におすすめ /
飯田グループ7社のプラン集と建築費が
ご覧いただけます!

建築費はこちら
CASE.004
人気の要望を随所に詰め込んだ
高天井のある家
M様邸(千葉県)
延床面積:113.85㎡(34.43坪)
敷地面積:161.75㎡(48.92坪)
間取り:3LDK+S+ロフト

ご実家のマンションに住んでいた頃から、将来はご両親と一緒に広い家に住みたいと考えていたM様。
社会人となりいよいよマイホームを取得する計画を動かしていくことになりました。マンションや建売も検討したそうですが、最終的に自分で間取りを決めていける注文住宅がいいと思うようになったそうです。
ご友人に飯田グループの戸建てを購入した方がいて、建物の品質が良く、購入しやすい価格であるということで興味を持ち、お問い合わせ頂きました。将来の売却も視野に入れて、人気の高い【キッチン家事動線】、【ただいま手洗い】、【リビング高天井】などを盛り込んでプランニング。住みやすく、コストパフォーマンスの高いマイホームとなりました。

天井高3.4mの開放感を中心に広々と設計されたゆとりあるLDK
リビング
3.4mの高い天井ラインに設置したFIX窓から光が差し込む明るいリビング。

ダイニング
カウンターキッチン越しに調理中の奥様との会話も可能な6人掛けも設置可能なダイニング。

キッチン
脱衣所、洗面所への家事動線を重視しつつもシンプルで使い勝手の良いキッチンスペース。

随所にアソビと機能性を盛り込んだプライベートゾーン
洋室
ワンルームとしてお母様が利用している洋間。将来的には間仕切りで2部屋に変更可能。

洋間
階下のリビング高天井を利用した小上がりロフト。ウォークインクローゼットを含め15畳の大空間に。

玄関
玄関横のシューズインクロークスペースをオープンなユーテリティスペースとして活用。

スカイガーデン
南東向きの開放感あふれる屋上バルコニー。日常の小休止や知人を招いてバーベキューに。

ガーデン
日々のメンテナンスが不要な人工芝を敷き詰めた庭。幅5mのウッドデッキと共に様々なシーンを演出。

生活動線と介護目線に配慮した快適な水廻り設備
洗面
1650mmの横幅の洗面台を採用。廊下側とキッチン・脱衣所側の両方から出入り可能な動線で使い勝手は抜群。

脱衣所
洗面所とは別に設けられた脱衣所は、小窓を設けることで通気性を確保。大型の洗濯機や収納を置いてもゆとりのスペース。

トイレ
バリアフリー対応で、横幅を広く設けたトイレ。ご高齢のお母様も安心して利用可能。

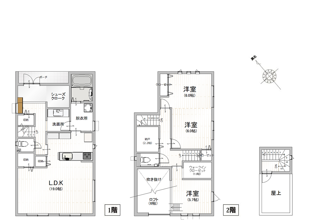
M様邸間取りプラン
延床面積:113.85㎡(34.43坪)
敷地面積:161.75㎡(48.92坪)
間取り:3LDK+S+ロフト
*「S」の表示は「納戸(サービスルーム)」を意味しています。

この実例に関連する特徴
関連する建築実例
\ 建築実例をご覧の方におすすめ!! /
飯田グループ7社のプラン集と建築費が
ご覧いただけます!

こちら


















