\ 建築実例をご覧の方におすすめ /
飯田グループ7社のプラン集と建築費が
ご覧いただけます!

建築費はこちら
CASE.024
親子それぞれの世帯を尊重した
完全分離型の二世帯住宅
N様邸(東京都)
延床面積:350.43㎡(106.00坪)
敷地面積:259.18㎡(78.40坪)
間取り:3LDK+S+4LDK

ご両親と同居するため二世帯住宅を建築したN様。「親世帯と子世帯の要望をていねいに聞いてくれた」というタクトホームに依頼いただきました。二世帯住宅ではベーシックな『1階を親世帯』にするのではなく、上下に暮らして音漏れに気兼ねすることがないように建物左右で世帯を分離したプランを採用。各世帯から屋外に出たウッドデッキでつながる間取りとなりました。また、明るく吹抜けのあるリビング、広い浴室、屋上など、共通する部分が多くあるものの、インテリアなど細部ではそれぞれの世帯のこだわりもしっかりと反映されました。
「前の家は隙間風が吹いて寒かったのですが、この家は快適です。それに、隣に息子たちがいると思うと、いざというときの安心感が大きいですね」とお父様。互いの生活を尊重しながら、必要に応じて助け合える二世帯住宅にご満足いただきました。

光がさんさんと降り注ぐ吹抜けのLDKが特徴の親世帯
ダイニング
ダイニング部分には大きな吹抜けがあり、開放感を演出。上部に設けた窓から太陽光が入り、部屋の奥まで明るいリビングダイニング。

洋室A
4つの正方形の窓と淡いピンクのアクセントクロスが印象的な洋室。大型のウォークインクローゼットや窓の外の広いバルコニーなど、こだわりの寝室に満足。

洋室B
通風、採光に配慮した南北に窓があるもう一つの洋室。就寝のみならず自分時間を楽しむ工夫が室内に溢れる。

部屋を細かく区切らず、ゆったりとした間取りの子世帯
子世帯の玄関
広さのみならず白の玉石と黒ベースの扉でデザインにこだわった玄関。ホールに配置された手洗いが便利で好評。

子世帯のリビング
子世帯のリビングはキッチンを含めると全体で23.5畳の広さ。リビングとダイニングの間が吹抜けとなっているため、2階とのコミュニケーションも容易に。

子世帯のDK
キッチンは壁を少しだけ立ち上げた手元隠しタイプ。ダイニングテーブルから見える側面には遊び心のある特徴的なクロスを採用。

子世帯の吹抜け
吹抜け部分に仕込んだLEDライトがほんのりと壁を照らし、柔らかな雰囲気に。廊下の手すり部分には、広がりを感じさせる透明なスクリーンパネルで視界を遮らない一工夫。

子世帯の主寝室
力強い梁が印象的な主寝室。抑えた色調のヘリンボーン柄のアクセントクロスがインテリアコーディネートの主役。

親世帯・子世帯それぞれのこだわりを随所に散りばめて
親世帯の屋上
お父様が設けたかったという屋上。夕涼みをしたり、ビールを飲んだりと気分転換に最良の空間として活用。

外観
掃除範囲も明確に分けられた距離を設けた2つの玄関。CGシミュレーションを参考に2色に貼り分けたイメージ通りの外観デザインに。

子世帯の洗面所
小さなお子様も自身が見える水栓裏のアンダーミラーや、お手入れがラクなカウンター一体型ボウルなど細部にまでこだわったワイド洗面化粧台。

子世帯の浴室
ユニットバスで一番大きなサイズの1.5坪の広々浴室。肩湯機能付き浴槽で、心身ともにリラックス。

ウッドデッキ
親世帯と子世帯をつなげるウッドデッキ。愛犬と遊んだり、バーベキューを楽しんだりする二世帯が集まる憩いのスペース。

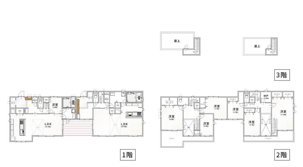
N様邸間取りプラン
延床面積:350.43㎡(106.00坪)
敷地面積:259.18㎡(78.40坪)
間取り:3LDK+S+4LDK
*「S」の表示は「納戸(サービスルーム)」を意味しています。

この実例に関連する特徴
関連する建築実例
タクトホーム
2階建て
40坪~
吹き抜け
屋上
パントリー
書斎
二世帯
シューズクローク
ウォークインクローゼット
\ 建築実例をご覧の方におすすめ!! /
飯田グループ7社のプラン集と建築費が
ご覧いただけます!

こちら

























