\ 建築実例をご覧の方におすすめ /
飯田グループ7社のプラン集と建築費が
ご覧いただけます!

建築費はこちら
CASE.039
各世帯が気兼ねなく暮らせる
完全分離型3階建て二世帯住宅
Y様邸(東京都)
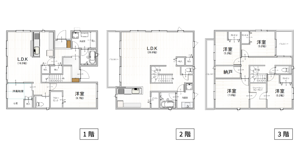
延床面積:195.40㎡(59.10坪)
敷地面積:142.99㎡(43.25坪)
間取り:2LDK+4LDK+S

Y様はご両親のM様と一緒に住む分離型の二世帯住宅に建て替えました。施工は、要望を細かく聞き取り、間取り図を何度も描き直してくれたアーネストワンに依頼しました。
1階は、ご両親が生活しやすいよう段差を極力排除した設計に。Y様の世帯は2階にLDKを配置し、居室を3階に設けることでプライベート空間を確保しました。両世帯は玄関内の引き戸でつながっており、お子様たちは毎日行き来しているそうです。程よい距離感を保ちつつも交流が楽しめるこの設計により、家族全員が快適に過ごせる住まいが完成しました。

2階に設けた子世帯のLDKは明るく広々としたスペース
2階LDK
キッチンからリビングにかけては、26.6帖の広々とした大空間が広がっています。複数の窓を設けているため、自然光がたっぷりと差し込み、明るく開放的な雰囲気を楽しむことができます。

ダイニング・キッチン
ダイニング・キッチンは奥まった場所に配置されており、プライバシーに配慮した設計が特徴です。

リビング
リビングは三方に窓があり、視界が広がる開放的な空間です。ソファに腰掛けるだけでなく、床に座るなど自由なスタイルでくつろげる広さになっています。

リビング
リビングの一角には、お子様が自分で管理できるおもちゃコーナーを設けました。木目調デザインの収納扉が、インテリアのアクセントとして空間に温かみを添えています。

3階は居室と書斎、充実収納で実用的な空間を実現
洋室(主寝室)
バルコニーに面した明るい洋室。現在は家族の主寝室として活用されています。

ウォークインクローゼット
主寝室と洋室をつなぐ便利な動線のウォークインクローゼット。

洋室
お子様が成長したときのために用意した子ども部屋。明るい光が差し込む快適な空間です。

書斎
リモートワークや書き物が可能な書斎。小さな空間ながらも、LDKとは別のフロアに位置しているため、静かで集中できる環境です。

使い勝手を考えて水まわりとLDKは回遊できる動線に
洗面室
間口が広い大型の洗面化粧台。左右のカウンターは小物のちょい置きに便利で、洗顔などの際にとても重宝します。

トイレ
階段の上り下りを考慮し、トイレを2階と3階の各フロアに設置しました。写真は2階のトイレで、窓と収納が備わり、機能的で快適な空間です。

動線
利便性を重視し、回遊性のある動線にこだわった2階フロア。階段ホールからLDK、廊下を経て階段へスムーズに戻れる設計です。

Y様邸間取りプラン
延床面積:195.40㎡(59.10坪)
敷地面積:142.99㎡(43.25坪)
間取り:2LDK+4LDK+S
*「S」の表示は「納戸(サービスルーム)」を意味しています。

この実例に関連する特徴
関連する建築実例
アーネストワン
3階建て
~40坪
パントリー
書斎
和室
二世帯
ウォークインクローゼット
\ 建築実例をご覧の方におすすめ!! /
飯田グループ7社のプラン集と建築費が
ご覧いただけます!

こちら






















