\ 建築実例をご覧の方におすすめ /
飯田グループ7社のプラン集と建築費が
ご覧いただけます!

建築費はこちら
CASE.028
吹抜けから入る日射しが心地いい
家族と愛犬がのびのび暮らせる家
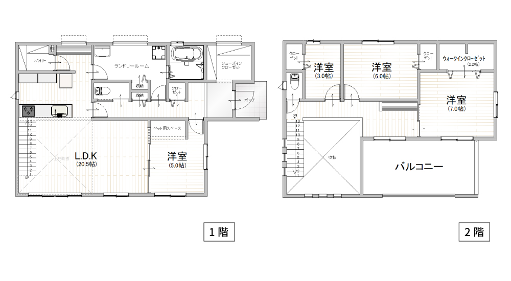
O様邸(神奈川県)
延床面積:132.49㎡(40.07坪)
敷地面積:145.62㎡(44.05坪)
間取り:4LDK

「いずれは家を持ちたい」と考えていたO様は、お子様の誕生をきっかけに家探しを始めました。2匹の愛犬がいるため戸建てを中心に検討し、自分たちの希望を叶えるには注文住宅しかないという結論に。土地探しを初めて1年半後、条件に合う土地が見つかり、家づくりが本格的にスタートしました。
プランの希望は、吹抜けのあるLDK、広い洗面室やバルコニー、家族が伸び伸びと暮らせる住まいであること。そして、愛犬が遊べる庭を設けたいということでした。それらを踏まえ提案された8つのプランから現在の間取りを選択したそうです。「朝、日射しが入って明るいLDKにいると、吹抜けをつくってよかったと実感します」とO様。吹抜けとオープンな間取りで広々としたLDKはとても居心地がよく、ご家族も愛犬も充実した毎日を過ごしているそうです。

憧れの吹き抜けでさらに開放的なLDKに
LDK
木目の温かみを感じるナチュラルな空間。スケルトン階段はアイアン素材の手すりがアクセントとなりスタイリッシュな印象をプラスした雰囲気に。

リビング
家族と愛犬が一番長く過ごすリビングは、テレビの背面に消臭・調湿機能のある壁材を選択。リビングの隣には5畳の洋室を配置し、愛犬のトイレスペースも確保。

吹抜け
吹抜けには三連窓を二面に配置したので朝から太陽光が入り、明るさも十分。スケルトン階段と2本の付梁が空間のアクセントに。

キッチン
キッチンは空間のイメージに合わせて木目とブラックで統一。オープンなキッチンは料理中でも家族の様子が見れて安心。

愛犬とのびのび暮らすための家づくり
庭
愛犬のために設けた庭。天気のよい日中はここで日向ぼっこをしたり、遊んだりして過ごすことのできるスペース。

床材と動線
リビングで過ごす愛犬に気づかれず外出できるように、奥のドアから洗面室を通って玄関へ行ける導線を確保。また、リビングの床は愛犬が汚してもすぐに拭き取れる素材に。

パントリーとバックヤード
キッチンの裏側に配置したパントリーはたっぷりの収納力が魅力。
パントリーの横には、愛犬のご飯の準備などもできるバックヤードも設置。

屋外水栓
散歩から帰ったときに愛犬の足を洗うことができるように玄関横に屋外水栓を設置。

暮らしやすさを優先した空間
洗面室
家族全員の着替えを収納するスペースを設けた広い洗面所。ハンガーパイプも設置しランドリールームとして活用。

バルコニー
「雨の日でもお子様・愛犬が遊べるスペースがほしい」の想いを叶えた広いインナーバルコニー。

主寝室
インナーバルコニーへの掃出し窓がある主寝室。ウォークインクローゼットを設け収納も充実。

玄関
玄関ドアは採光用のガラスが入った電子錠タイプを選択。ロールスクリーンの向こうはシューズインクローゼットで、靴のほかベビーカーなどを収納。

O様邸間取りプラン
延床面積:132.49㎡(40.07坪)
敷地面積:145.62㎡(44.05坪)
間取り:4LDK

この実例に関連する特徴
関連する建築実例
タクトホーム
2階建て
40坪~
吹き抜け
スケルトン階段
ランドリールーム
パントリー
書斎
シューズクローク
ウォークインクローゼット
\ 建築実例をご覧の方におすすめ!! /
飯田グループ7社のプラン集と建築費が
ご覧いただけます!

こちら


























