\ 建築実例をご覧の方におすすめ /
飯田グループ7社のプラン集と建築費が
ご覧いただけます!

建築費はこちら
CASE.045
光を採り込む、シンプルモダン
T様邸(埼玉県)
延床面積:132.05㎡(39.94坪)
敷地面積:222.74㎡(67.37坪)
間取り:3LDK+書斎

「床暖房は心地よいですね」と、新築した住まいについて語るT様。お二人のお子様が「自分の部屋がほしい」と言い出したのをきっかけに、家づくりを決意されました。
モデルハウスの見学やインターネット動画で情報を集め、3社に見積もりを依頼。その中から、最も信頼できると感じた営業担当者がいたユニバーサルホームを選びました。
「私たちの希望をよく汲み取ってくれただけでなく、希望どおりにできない場合は代替案も提示してくれました。そこが信頼でき、ユニバーサルホームにお願いする決め手になりました」とT様。
その結果、吹抜けのあるリビングや書斎、充実した収納を備えた、満足のいく新居が完成しました。

LDKは吹抜けで、縦横に広がりを感じる空間に
リビング
吹抜けから自然光が降り注ぐ、明るく開放的なリビング。木目の床と落ち着いたソファが調和し、家族が心地よく集える空間です。

ダイニング・キッチン
キッチン部分には下がり天井を設け、空間に奥行きを演出しました。システムキッチンは天板とシンクをブラックで統一し、全体をモダンに仕上げています。

パントリー
キッチン奥にはパントリーを設け、ストック食品や調理家電、日用品まで“見せずに”しっかり収納。可動棚で収納量に合わせて調整でき、必要なものがすぐ手に取れる使い勝手の良い空間です。

LDK
キッチンからリビング方向へ視線が抜け、奥行きを感じられます。吹抜けによって天井が高く、開放感のある空間が広がっています。

靴だけでなく、趣味の道具をしまうための収納を確保
玄関・シューズインクローク
扉を設けないオープンタイプのシューズクロークは、たっぷりの収納量を確保。来客用と家族用の動線を分けることで、玄関をいつもすっきり保てます。

収納・シューズインクローク
玄関には、サーフボードやウェットスーツ、キャンプ道具などをしまえるクロークを確保。棚やハンガーパイプの高さも綿密に計画し、趣味の道具がすっきり収まる収納に仕上げました。

ウォークインクローゼット
ランドリールーム兼脱衣室の隣に広めのウォークインクローゼットを配置。タオルや下着をまとめて収納し、入浴後の着替えまでスムーズに。

2階には家族のこだわりや個性をいかした個室を
子ども部屋
落ち着いたアクセントクロスとやわらかな照明で安心して過ごせる個室に。収納も確保し、片付けやすさにも配慮しました。

子ども部屋
もう一つの子ども部屋。クロスをはじめ、ブラインドや照明などはご自身で選んだものだとか。

主寝室
2階の主寝室には、モデルハウスを参考にしてご夫妻それぞれのウォークインクローゼットを用意しました。

設備機器や内外装は実物を確認してから決断
書斎
テレワーク会議を行うこともあるT様のご希望で設けた書斎です。天井にダークカラーを取り入れ、落ち着きのある空間に仕上げました。

洗面室
グレーの石目カウンターと丸鏡が映える洗面空間。高窓の柔らかな採光で、落ち着きと上質感を両立しました。

1階トイレ
トイレはタイル床とアクセントクロスで、おしゃれな空間に。光が拡散する照明器具が、さりげなく個性を添えています。

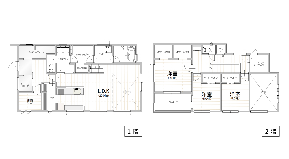
T様邸間取りプラン
延床面積:132.05㎡(39.94坪)
敷地面積:222.74㎡(67.37坪)
間取り:3LDK+書斎
この実例に関連する特徴
関連する建築実例
ユニバーサルホーム
2階建て
30坪~40坪
吹き抜け
ランドリールーム
パントリー
書斎
シューズクローク
ウォークインクローゼット
\ 建築実例をご覧の方におすすめ!! /
飯田グループ7社のプラン集と建築費が
ご覧いただけます!

こちら


























