\ 建築実例をご覧の方におすすめ /
飯田グループ7社のプラン集と建築費が
ご覧いただけます!

建築費はこちら
CASE.019
社員ならではの知識と経験を詰め込んだ
収納重視でモノがあふれない平屋住宅
K様邸(群馬県)
延床面積:109.30㎡(33.06坪)
敷地面積:406.21㎡(122.87坪)
間取り:3LDK

建築を依頼した一建設に勤めるK様。住宅業界に携わっているからこそ、右肩上がりの建築資材高騰を目の当たりに。夫婦2人の生活では、一戸建て購入の必要性は高くなかったそうですが、いずれ購入するのであれば早い方がお得に建築できると考えて、親御様の所有地に新築を決断。
いざ、プランを考え始めた時が何より苦悩した時期に。知識があるだけに、欲しいもの、取り入れたいことがいくつも浮かび、優先順位を付けての取捨選択に苦労したそうです。
間取りはご自身で考えられましたが、設計担当にプランを確認してもらうと『耐震等級3』の間取りに軽微修正してくれることに「安心感が増しました」と自社の良さを再確認。新居の計画中にお子様にも恵まれ、新しい家族と共にワンフロアの暮らしを楽しんでいらっしゃいます。

ダウンライトでスッキリ広々見渡せるLDK
キッチン
リビングダイニングとの繋がりを重視して壁を少なくした高級感あふれる黒基調の
ペニンシュラキッチン。

リビング
メリハリを生む折り上げ天井と幅2.5mの大きな窓で圧迫感の少ない開放的なリビング。

ダイニング
家族構成の変化にも対応出来るよう、
ゆとりを持たせた南面の明るいダイニング空間。

時短と効率を考えた大型収納
シューズクローク
地窓で光を採り入れ、L字型カウンターで多くの靴を見渡す事が可能な明るく大容量のシューズクローク。

ファミリークローゼット
洋服、肌着、タオルなどゾーン分けされた、洗面所と玄関ホールの両方から出入り可能なファミリークローゼット。

パントリー
3本引き戸で出し入れのしやすいキッチンシンク横に配置された幅1.7mの大型パントリー。

変化を楽しむ工夫のある室内空間
玄関ホール
ホワイトインテリアにグレーの石目クロスのアクセントを加えた清潔感あふれる玄関ホール。

寝室
将来の家族構成の変化にも対応可能な2室続きの子供部屋を現在は家族3人の広々寝室として利用。

用途に合わせた2つの洗面台
玄関洗面
帰宅後すぐに手洗いが出来るよう設置された、来客も使い易い玄関ホールの洗面台。

洗面脱衣所
キッチンとファミリークローゼット双方から出入りが可能な高窓から光が降り注ぐ明るい洗面脱衣所。

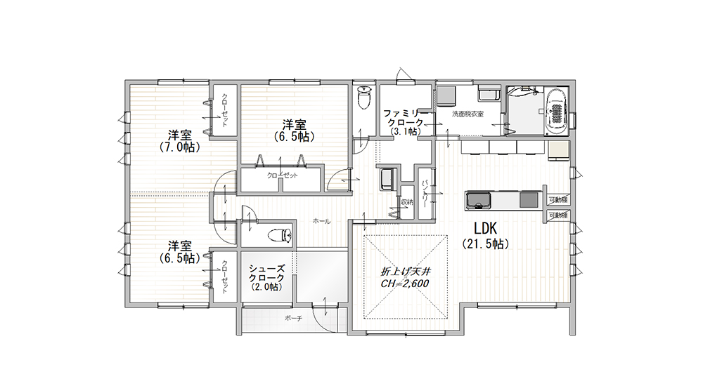
K様邸間取りプラン
延床面積:109.30㎡(33.06坪)
敷地面積:406.21㎡(122.87坪)
間取り:3LDK

この実例に関連する特徴
関連する建築実例
一建設
平屋
30~40坪
パントリー
シューズクローク/h3>
ウォークインクローゼット
\ 建築実例をご覧の方におすすめ!! /
飯田グループ7社のプラン集と建築費が
ご覧いただけます!

こちら















